Complexe Multisports LERY - La Seyne sur mer
Reconversion de la tour TPM-Caisse d'épargne - Toulon Liberté
Ecole d'ingénieur SUPMECA Toulon / La garde
Extension de l'unité de psychiatrie hôpital Publique de Fréjus
Unité de Nephrologie-Dialyse - Hôpital La conception - Marseille
Unité de Nephrologie-Dialyse- Hôpital La conception - Marseille
UCPA - Cuisine centrale pour les hôpitaux de Toulon / La Seyne
Extension de la maternité Hôpital - Aix en provence
Groupement de Gendarmerie - La Valette du Var
Extension du quart de virage - Stade Mayol - Toulon
Extension du quart de virage -Stade Mayol - Toulon
230 Logements sur le site Massillon - Hyères
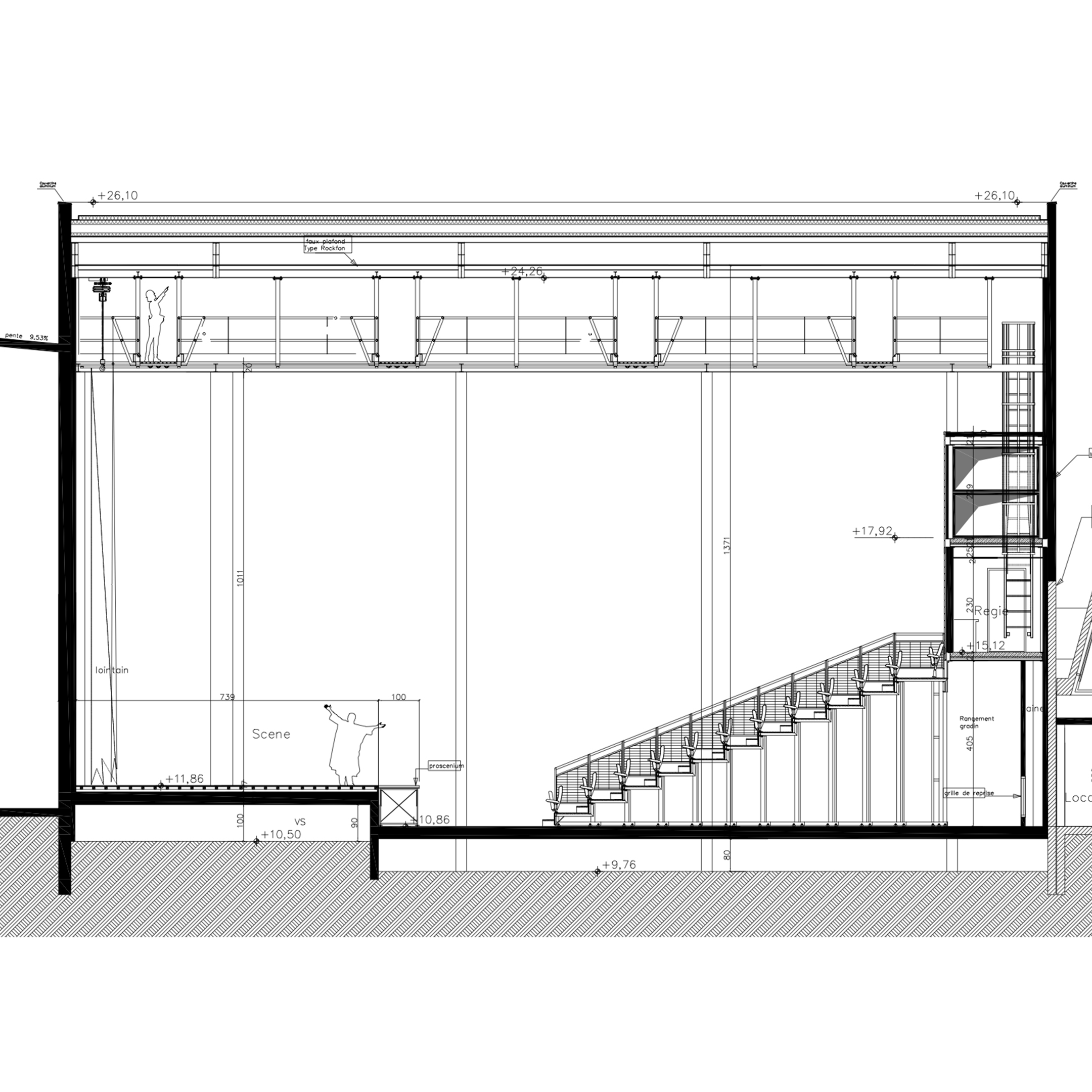
Théâtre Henry Tisot - La Seyne sur mer
Théâtre Henry Tisot- La Seyne sur mer
Réalisation parking public - La Seyne sur mer
Création d'une unité pour grands brûlés - APHM - Marseille
Eco Quartier sur le site du Yotel - Cogolin
Salle Omnisports - St-Cyr sur mer
Restaurant du personnel Arsenal de Toulon
100 logements au Tennis du bagier - Le Pradet
250 Logements - La Farlède
2017 © Flex architectes Coded by Fanny Ami